
ZSC(A)減速機為立式套裝式漸開線圓柱齒輪減速機,主要用于礦山,冶金,水泥,建筑,化工,輕工,等各種機械設備的減速傳動,適合受結構限制采用立式安裝的工作場合,高速軸轉速不超過1500r/min,工作環境為-40℃—+40℃,可正反轉運行。

PM減速機是由主軸、輸出軸、減速機箱、磁粉離合器、磁粉制動器和磁粉離合器傳動部分組成的減速機。通過電磁力的作用,控制磁粉離合器的密合程度,從而控制輸出軸的轉速和轉矩。其優勢在于體積小、重量輕、精度高、噪音低、扭矩大、傳動效率高等特點。

QY起重機減速機是一種重要的機械傳動裝置,是起重機等機械設備的核心部件。它具有很多優點,包括傳動比大、扭矩輸出平穩、功率傳遞效率高、結構緊湊、運行平穩、散熱效果好、維護保養方便等,被廣泛應用于各種起重場所、礦山、機械設備等行業中。在使用時,需注意使用方法及維護保養,以確保其長期的運行效率。

QY系列起重機減速機性能特點 考慮起重機各機械的工作特點,傳動比范圍,進一步提高產品性能,采用較少規格滿足用戶多方面的要求,其特點為: 1 承載能力高、齒輪采用滲碳、淬火、磨齒加工、承載能力比調質滾齒的軟齒面和中硬齒面齒輪減速器有大幅度提高。 2 體積小、重量輕、與軟齒面和中硬齒面減速器相比,相同承載能力減速器可降低2~4個相當機座號。 3 效率高、噪聲低、振動小。采用磨齒加工提高了精度等

QJ起重機減速機是一種高效率、高精度、高安全性、高可靠性的工業減速設備,廣泛應用于起重、輸送、礦山、石油、化工、食品、煙草、冶金、醫藥、醫療等諸多行業中,在大型起重、運輸及向各種機械設備動力傳動裝置中都得到了廣泛的應用。

QJ系列起重機減速機特點 起重機減速機因為是間歇式、周期重復工作。減速機發熱相對連續型工作的要好些,但是經常起制動慣性載荷較大。因此輪齒的彎曲強度的安全系數較高,特別是用于起升和變幅機構。直接影響人身和設備安全更應如此。另外起升機構的減速機輸出端多數要求帶齒盤接手或卷筒聯軸器直接與卷筒相聯,它不僅傳遞轉矩,還要承受較大的徑向載荷(相當于卷筒的一端支座)。 運行機構的“三合一”懸掛套裝式減速機,

QJY起重機減速機的出現,為重載物品的運輸解決了許多難題。它采用的國際成熟的制造工藝和制造技術,使得其在同行業中處于先進水平。QJY起重機減速機具有動力強、穩定可靠等優點,并且不同類型和規格的起重機都有著相應的適配型號,可以滿足不同行業和用戶的需求。此外,它的操作簡單,易維護,細節設計更加人性化,可以方便高效地完成工作。

QJY系列起重機減速機齒輪采用低碳合金鋼,齒面滲碳淬硬,磨削成形,具有承載能力大(較QJR、QJS減速器提高1.8~2.4倍)、傳動效率高、使用可靠、壽命長等優點。適用于起重機的各有關機構,也可用于運輸、冶金、礦山、化工、輕工等各種機械設備的傳動機構中。

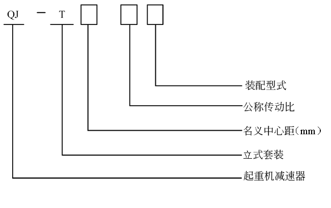
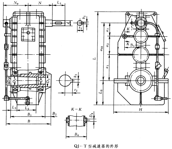
QJ-T起重機減速機優點眾多,首先它的速度調節范圍廣泛,可以根據不同的負載需求自由調節輸出功率。其次,減速機操作簡單,使用起來非常方便。同時,它的能效比較高,可靠性也很高,能夠長期穩定運行,減少維修率。重要的是,QJ-T起重機減速機能夠降低整機噪音,提高起重工作環境舒適度。

QJ-T起重機減速機主要用于起重機的起升、運行、回轉和變幅四大機構中。起重機減速機因為是間歇式、周期重復工作。減速器發熱相對連續型工作的要好些,但是經常起制動慣性載荷較大。因此輪齒的彎曲強度的安全系數較高,特別是用于起升和變幅機構。

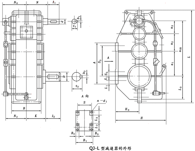
以其高扭矩,低噪聲和長使用壽命,QJ-L起重機減速機一直是起重設備的標準配備。該減速機適用于起重機、鐵路機車、港口機械、礦山機械和碼頭機械等領域,其市場前景非常廣闊,未來的發展方向依然向著更高水平的產品性能和功能發展。

QJ-L起重機減速機是一種專業的工程機械零部件,主要用于重型起重機和橋式起重機的起升和移動過程中,起到減速和增加扭矩的作用。該減速機手工裝配,采用先進的熱處理工藝和精密加工技術,具有高扭矩、低噪聲和長使用壽命等特點。

YK減速機是一種專業用于工業機械減速的設備,其出現極大地滿足了很多工業生產的需要,尤其是在機械傳動的領域上擁有著舉足輕重的地位,成為現代工業生產中必不可少的減速設備。

YK減速機為硬齒面通用減速機,由一級弧齒圓錐齒輪加一、二、三級平行軸圓柱齒輪組成,已列入YB/T050—93,其類型代號見下表。YK系列圓柱齒輪減速機型式代號與主要參數 YB/T050-93類別級數代號傳動比范圍末級中心距/mm單級中心距/mm基本型懸掛型空心軸型YK系列圓錐—圓柱減速器2YKLYKLOYKLA5~16560803YKSYKSOYKSA11.2~908004YKF—YKFA90~5

ZSY減速機具有很強的適應性,成熟的技術體系和完善的售后服務,有著廣泛的市場需求和美好的發展前景。眾所周知,減速機在機械制造中是少不了的設備,而現代工業時代的來臨更需要具有全球視野的先進技術的產品,ZSY減速機正是這樣的一款產品。

ZSY減速機產品是按國家標準生產的外嚙合漸開線斜齒圓柱齒輪減速機。本產品廣泛應用于冶金、礦山、起重、運輸、水泥、建筑、化工、紡織、印染、制藥等領域。ZSY減速機適用范圍如下: 1.高速軸轉速不大于1500轉/分。 2.齒輪傳動圓周速度不大于20米/秒。 3.工作環境溫度為-40~45℃,如果低于0℃,啟動前潤滑油應預熱至0℃以上,本減速機可用于正反兩個方向運轉。ZSY減速機型號、規格及其表示

ZSZ減速機是工程機械、食品機械、化工機械等領域中較常用的機件之一,主要功能是將高速轉動的電機通過內部減速裝置對轉速進行降低,同時提高轉矩,最終驅動負載旋轉或線性運動。

ZSZ減速機是按國家標準生產的外嚙合漸開線斜齒圓柱齒輪減速機。本產品廣泛應用于冶金、礦山、起重、運輸、水泥、建筑、化工、紡織、印染、制藥等領域。減速機適用范圍如下: 1.高速軸轉速不大于1500轉/分。 2.齒輪傳動圓周速度不大于20米/秒。 3.工作環境溫度為-40~45℃,如果低于0℃,啟動前潤滑油應預熱至0℃以上,本減速機可用于正反兩個方向運轉。 ZSZ減速機型號有:ZSZ160、Z

ZDY減速機作為一種高性能的傳動裝置,擁有先進的技術水平和高質量的制造工藝,應用范圍廣泛,技術維護簡便,安全性優越等優點,非常適合用于工業生產領域。因此,在選擇自己需要的減速機系統時,不妨把ZDY減速機列入候選名單,相信它一定會給您帶來更加卓越的使用體驗。

ZDY減速機型號有:ZDY80、ZDY100、ZDY125、ZDY160、ZDY200、ZDY250、ZDY280、ZDY315、ZDY355、ZDY400、ZDY450、ZDY500、ZDY560
掃一掃咨詢微信客服